Description
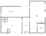
This is a turnkey opportunity for an owner-operator mechanic ready to own and grow their own business. The business includes the building, all equipment, two employees, and training from the seller. AA Transmission has thrived at this location since 1987. The property is on a corner lot, with access from two streets and a city alley. The exterior has a fenced yard and new asphalt parking lot. The interior has 4 shop bays, reception, and various spaces for parts storage. A majority of the building was built in 2000. The property is located a block from both N Montana Avenue and N Last Chance Gulch. The seller is willing to carry a note or lease to a buyer. Overall, this is a turnkey business with great real estate, flexible sale structuring, room for growth, and absolutely everything needed to succeed from day one.
-
0BEDS
-
0.32ACRES
-
0BATHS
-
01/2 BATHS
School Ratings & Info
Description
This is a turnkey opportunity for an owner-operator mechanic ready to own and grow their own business. The business includes the building, all equipment, two employees, and training from the seller. AA Transmission has thrived at this location since 1987. The property is on a corner lot, with access from two streets and a city alley. The exterior has a fenced yard and new asphalt parking lot. The interior has 4 shop bays, reception, and various spaces for parts storage. A majority of the building was built in 2000. The property is located a block from both N Montana Avenue and N Last Chance Gulch. The seller is willing to carry a note or lease to a buyer. Overall, this is a turnkey business with great real estate, flexible sale structuring, room for growth, and absolutely everything needed to succeed from day one.
© 2025 Montana Regional MLS. Information is provided exclusively for consumers personal, non-commercial use and may not be used for any purpose other than to identify prospective properties consumers may be interested in purchasing. Information is deemed reliable but not guaranteed and should be independently verified. Data last updated: 2025-12-15T08:18:39.597.

