Description
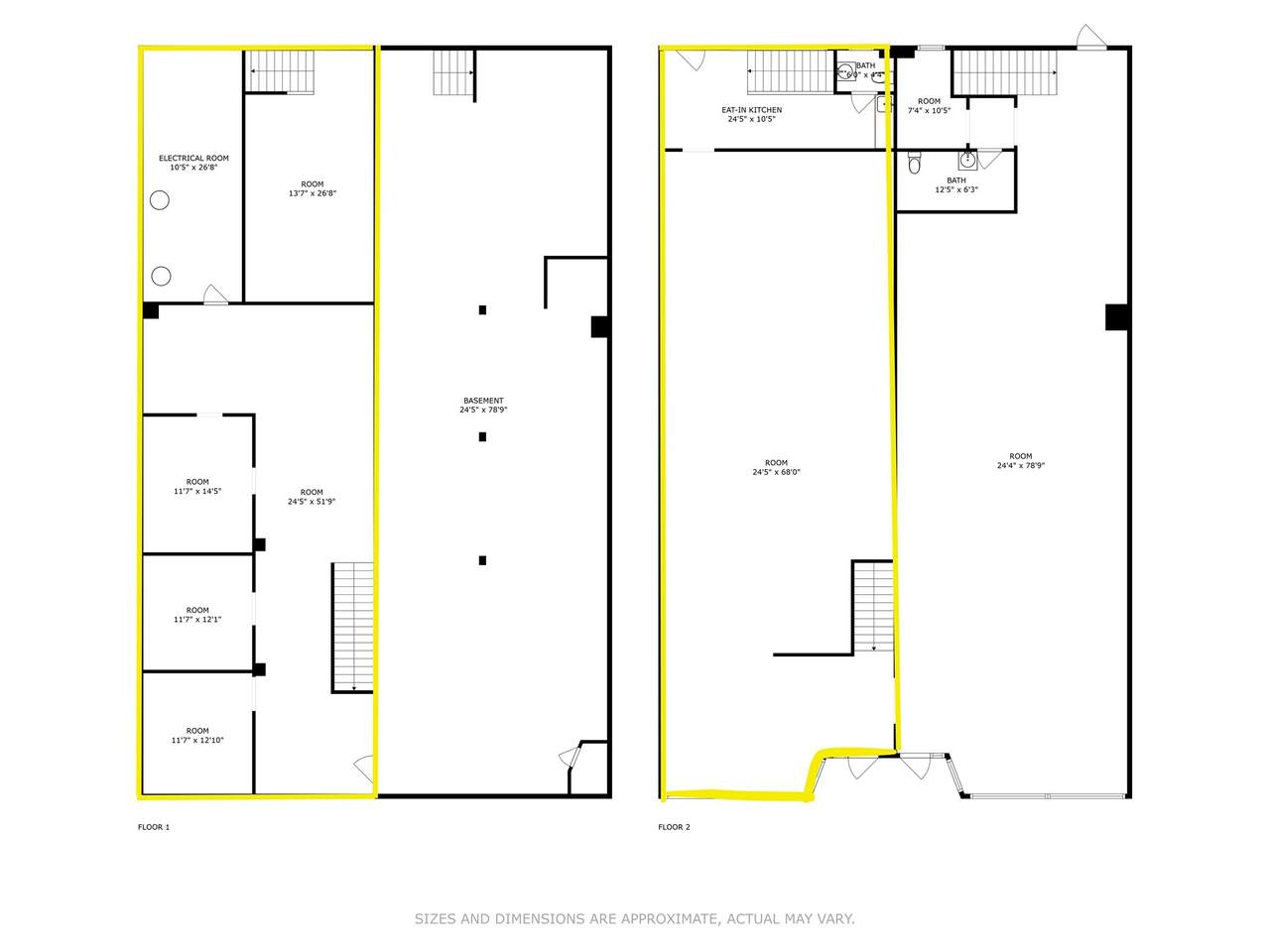
Commercial lease space available downtown Kalispell. 3,700 SF, retail on the main floor with a full basement with endless opportunities. Situated on the south end of Main Street, next to Nail Toepia and Ceres Bakery Inc. Located in the bustling heart of downtown Kalispell, this property boasts high visibility and foot traffic. With a daily traffic count of approx 23,000, providing maximum exposure for your business. The space features an open floor plan, half bath, and a basement with additional rooms. Large display windows provide ample natural light and an inviting atmosphere for customers and clients. Surrounded by a vibrant mix of shops, restaurants, and professional services, this location is ideal for businesses looking to establish a strong presence in a thriving community. 8 total parking spaces in the alley way. Two spaces available for lease, can be leased together. The NNN is $375 a month per space.
-
0BEDS
-
0.16ACRES
-
0BATHS
-
11/2 BATHS
School Ratings & Info
Description
Commercial lease space available downtown Kalispell. 3,700 SF, retail on the main floor with a full basement with endless opportunities. Situated on the south end of Main Street, next to Nail Toepia and Ceres Bakery Inc. Located in the bustling heart of downtown Kalispell, this property boasts high visibility and foot traffic. With a daily traffic count of approx 23,000, providing maximum exposure for your business. The space features an open floor plan, half bath, and a basement with additional rooms. Large display windows provide ample natural light and an inviting atmosphere for customers and clients. Surrounded by a vibrant mix of shops, restaurants, and professional services, this location is ideal for businesses looking to establish a strong presence in a thriving community. 8 total parking spaces in the alley way. Two spaces available for lease, can be leased together. The NNN is $375 a month per space.
© 2025 Montana Regional MLS. Information is provided exclusively for consumers personal, non-commercial use and may not be used for any purpose other than to identify prospective properties consumers may be interested in purchasing. Information is deemed reliable but not guaranteed and should be independently verified. Data last updated: 2025-12-12T16:18:43.287.

